Explore our core offerings designed to maximize functionality, elevate style, and deliver technical precision for your home or workspace.
![[background image] image of the store location (for a home goods store)](https://cdn.prod.website-files.com/684557cb869557acd2ce0af3/688f8954c131607171718499_66302035-5dfa-4033-9fe7-cca2cf93a06d.jpeg)
We assist in choosing the right materials for your space, including flooring, wall finishes, countertops, and cabinetry. Our selections balance durability, aesthetics, and budget to fit your design goals.
![[background image] image of architectural plans (for a construction company)](https://cdn.prod.website-files.com/684557cb869557acd2ce0af3/688f8a91bd0ae55140f0dc60_onsite_visit.jpeg)
A professional visit to your space to assess dimensions, lighting, and existing conditions. This ensures design decisions are accurately tailored to your environment.
![[background image] image of art supplies on a desk (for a graphic design studio)](https://cdn.prod.website-files.com/684557cb869557acd2ce0af3/688f880482f4a5eaf6e24f22_2c19da6d-ed38-47aa-a92d-00001cea62ed_kitchen.jpeg)
Detailed kitchen drawings include layout plans, elevations, and cabinetry specifications. These drawings serve as a precise guide for contractors and installers.
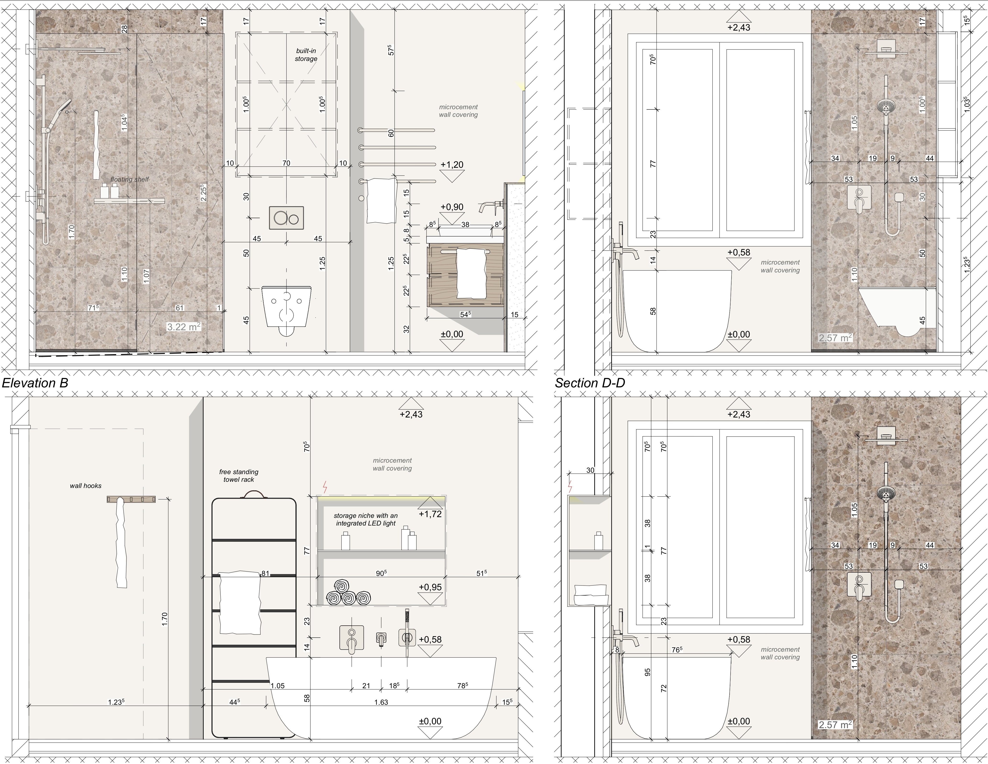
![[background image] image of the store location (for a home goods store)](https://cdn.prod.website-files.com/684557cb869557acd2ce0af3/688f8b9c98296810eac20974_23-41%20Steve%20Micallef_Bathroom%20OG_Elevations_bathrooms_1_page-0002.jpg)
We provide comprehensive bathroom plans including plumbing layout, tile patterns, and fixture placement. These ensure a smooth and accurate execution during renovation.
![[background image] image of architectural plans (for a construction company)](https://cdn.prod.website-files.com/image-generation-assets/112b9874-19c3-4bb3-b702-24bb2830a0d6.avif)
A tailored lighting layout that enhances the function and mood of each space. We consider natural light, fixture types, and placement for optimal results.
![[background image] image of art supplies on a desk (for a graphic design studio)](https://cdn.prod.website-files.com/684557cb869557acd2ce0af3/688f8a2dabcb5db8c52fc8a6_layout_planning.png)
We create detailed floor plans that maximize flow, space usage, and functionality. Each layout is customized to suit your lifestyle and design vision.
![[background image] image of the store location (for a home goods store)](https://cdn.prod.website-files.com/image-generation-assets/8ccf21b0-bc04-4a3b-af85-8f7c3ce9c6f9.avif)
We help you choose furniture that complements your space in terms of style, scale, and comfort. The selection includes recommendations from trusted brands and suppliers.
![[background image] image of architectural plans (for a construction company)](https://cdn.prod.website-files.com/684557cb869557acd2ce0af3/688f8c5c1834398fcd6f14b3_custom_furniture.jpg)
Bespoke furniture pieces designed to fit your unique space and taste. We manage the design, production, and finish to ensure a one-of-a-kind result.
![[background image] image of art supplies on a desk (for a graphic design studio)](https://cdn.prod.website-files.com/684557cb869557acd2ce0af3/688f88953032819fa8945509_Bathroom-002%20copy_3D_vsu.jpg)
Realistic renders and sketches bring your ideas to life, helping you visualize the final result before work begins.